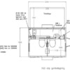
Beskrivning
- Tankkapacitet: ca 600 besök
- Kapacitet: ca 50 besök per timme
- Mått: H: 280 cm, B: 225 cm, L: 240 cm.
- Elanslutning: 400V 16A CEE-kontakt
- Max. Effektförbrukning: 5850W
- Tank: 300 l. vatten / 600 l. avloppsvatten
- Vattenanslutning: 3/4″ Nito-koppling
- Avlopp: 1″ Nito koppling
- Pumpslangs längd: max 30 m
- Vikt: 1 500 kg.
Utrustning:
LED-belysning på utsidan och insidan, radiator, dispenserhållare, handfat, spegel, krok, toalettpappershållare, hållare för sanitetspåse, fasta trappor, varmvattensbehållare 15 l.
Inkl. 25 m. vatten- och avloppsslang och strömkabel
En avgift tas ut för påfyllning, rengöring och tömning vid användning av tanken.









