Vare nr. 05116

Produktionslastbil

Utvalda specifikationer
El-tilslutning
1 stk 400 V/ 16 A CEE kontakt
Elanslutning – Stickproppstyp
CEE kontakt
Vattenanslutning
3/4" Nito-koppling
Om produkten

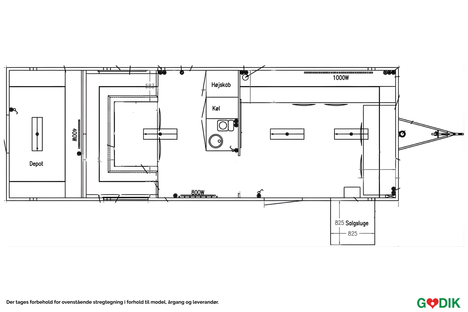
7,3 m/längd, förråd, kök, soffgrupp och kontor med leveranslucka

(Vi svarar vanligtvis inom 24 timmar)
Låt oss hjälpa dig med ditt nästa projekt – är du redo att komma igång?

Specifikationer

Number
05116
Utvändig höjd (cm)
295
Utvändig längd (cm)
730
Utvändig bredd (cm)
250
Antal handfat
1
El-tilslutning
1 stk 400 V/ 16 A CEE kontakt
Vattenanslutning
3/4" Nito-koppling
Avloppsanslutning
1" Nito-koppling
Antal avloppskvarnar
1
Avloppskvarn, pumplängd (m)
50
Vikt för sömlös sammankoppling (kg)
2000
Dragkula (mm)
50

Produktbeskrivning

Godiks produktionslastbil ger dig full kontroll på hjul – med GPS-spårning av anställda, övervakningsfunktioner och fullständig radiokommunikation. En fullt utrustad lastbil för säker och effektiv evenemangshantering.

Vad ingår i hyran?

25 meter vattenslang, avloppsslang och elkabel 400V/16A.

Beskrivning
Produktionsvagnen är utrustad med 1 skrivbord med 2 övre hyllor, 2 stolar, golvuttag för kablar, 1 papperskorg, Dankortterminaler, fällbar bordsskiva med 2 övre hyllor med plats för flightcase, t.ex. med en Motorola analog repeater, 40 st. förladdare för nätkontakter för radio.
Inredning i kök/vardagsrum
Köksskåp, flaskkylare, kaffebryggare, mikrovågsugn, diskho med avrinningsställ, 1 papperskorg, hörnsoffa/dubbelsäng, TV.
Inventarier i förrådet
2 hyllor på 3 sidor.