Beskrivning
- Kapacitet: cirka 200 besök per timme
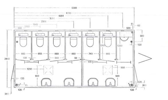
- Externa mått: H: 295 cm, B: 250 cm, L: 520 cm.
- Elanslutning: 400V 16A CEE-kontakt
- Vattenanslutning: 3/4″ Nito-koppling
- Avlopp: Ø110
- Dragkula: 50 mm
- Skick: begagnad
Utrusning:
4 damtoaletter, 2 herrtoaletter, 1 urinoar, 4 handvaskar, 2 handtorkare, spegel, hållare för sanitetspåse och toalettpappershållare.
Inkl. 25 m. vattenslang och strömkabel 400V/16A










