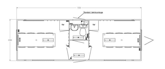
Beskrivning
- Mått: H: 295 cm, B: 250 cm, L: 730 cm.
- Elanslutning: 400V 16A CEE-kontakt
- Max. Effektförbrukning: 6170W
- Vattenanslutning: 3/4″ Nito-koppling
- Avlopp: 1″ nitokoppling
- Avloppskvarn: pumpslangs längd max 50 meter.
- Dragkula: 50 mm
Utrustning:
2 kylskåp, 2 bord, 16 stolar, toalett, handfat, varmvattenberedare, 2 speglar, 2 anslagstavlor, rullgardin och elradiatorer.
Inkl. 25 m. slanguppsättning










