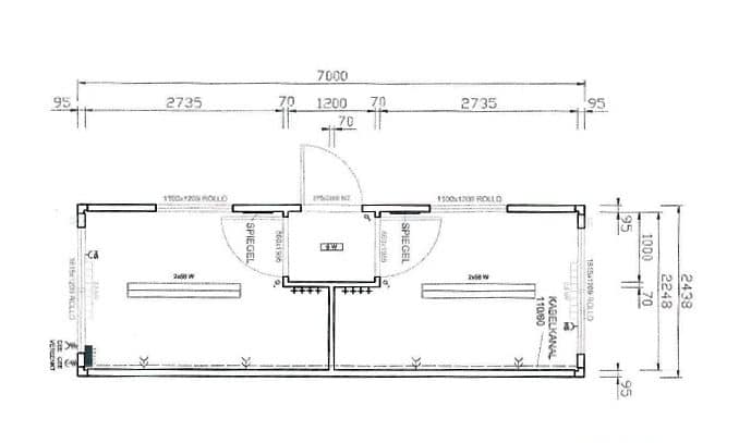
Beskrivning
- Mått: H: 275 cm, B: 255 cm, L: 715 cm.
- Kapacitet: 2 rum
- Elanslutning: 400V 16A CEE-kontakt
- Max. Effektförbrukning: 5300W
- Vikt: 2 500 kg
- Lyftram för vajervinsch
Utrustning:
Elektrisk radiator, belysningsarmaturer, 4 st eluttag 230V och öppningsbara fönster.










