Beskrivning
- Externa mått: H: 315 cm, B: 250 cm, L: 730 cm.
- Elanslutning: 400V 16A CEE-kontakt
- Max. Effektförbrukning: 17582W
- Vattenanslutning: 3/4″ Nito-koppling
- Avlopp: 1″ Nito koppling
- Avloppskvarn: pumpslangs längd max 50 meter.
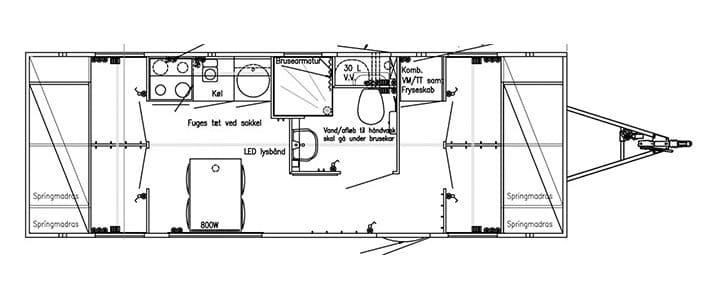
Utrustning:
4 sovrum med resårmadrass, kök, spis, spisfläkt, mikrovågsugn, kylskåp, frys, tvättmaskin, torktumlare, bord och 4 stolar, kaffebryggare, klädhängare, badrum med dusch, toalett, handfat, teknikrum med avloppskvarn.
Inkl. 25 m. slanguppsättning
Se hur produkten ser ut














