Specifikationer
- Number
- 04495
- Höjd (cm)
- 295 cm
- Längd (cm)
- 730 cm
- Bredd (cm)
- 250 cm
- Måttanteckningar
- Mått utfälld: Höjd: 295, Längd: 730, Bredd: 500 cm.
- Max. effektförbrukning (W)
- 5200
- Vattenanslutning
- 3/4" Nito-koppling
- Avloppsanslutning
- 1" Nito-koppling
- Antal avloppskvarnar
- 1
- Avloppskvarn, pumplängd (m)
- 50
- Vikt för sömlös sammankoppling (kg)
- 3500
Produktbeskrivning
-
Exklusiv husvagn för artister, band och utställningar. Möblerad med ett bekvämt vardagsrum, kök och badrum. Skapar en cool och funktionell miljö.
Vad ingår i hyran?
- 25 meter vattenslang, avloppsslang och elkabel.
-
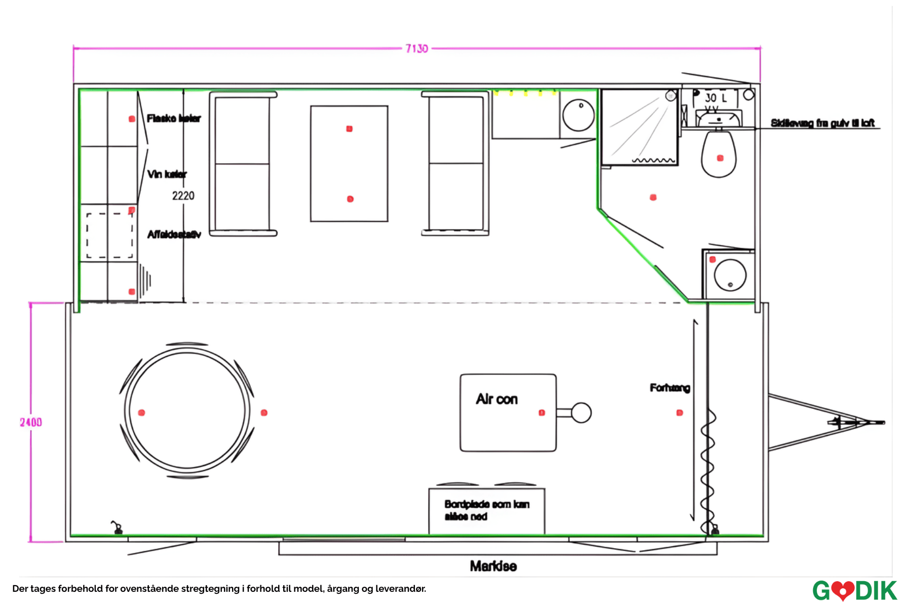
Lager
Buffé/vardagsrum: Övre hylla ovanför buffé och glasbakvägg, buffé med lådsektion, avfallsställ, flaskkylare, vinkylare, 2x 2-personssoffor, bord. Matplats: 1 runt bord, 6 stolar, skrivbord med topphylla, luftkonditionering, garderob med draperi, sminkbord med spegel, handfat,underskåp, bilder och dekorationer. Badrum: Duschkabin, handfat med bord och spegel, toalett med avloppskvarn.Utvändigt: 3 trappor.