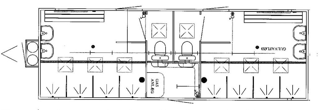
Beskrivning
- Kapacitet: ca 48 duschar per timme
- Kapacitet: med tält. 200 besök per timme
- Mått: H: 300 cm, B: 250 cm, L: 730 cm.
- Elanslutning: 230V 16A CEE-kontakt
- Vattenanslutning: 3/4″ Nito-koppling
- Avlopp: Ø110
- Gas varmvattenberedare: 24 kW. Förbrukning max. 2 kg gas per timme 2 x 11 kg. gasflaskor med automatisk växlare för gasflaskor
- Dragkula: 50 mm
Utrustning:
2×4 duschar med belysning, elektrisk uppvärmning, 4 handfat, 2 vattenspolande toaletter, sanitetspåse hållare, spegel, bänk och jumbo toalettpappershållare.
Inkl.. 25 m. strömkabel 230V/16A och vattenslang














