Beskrivning
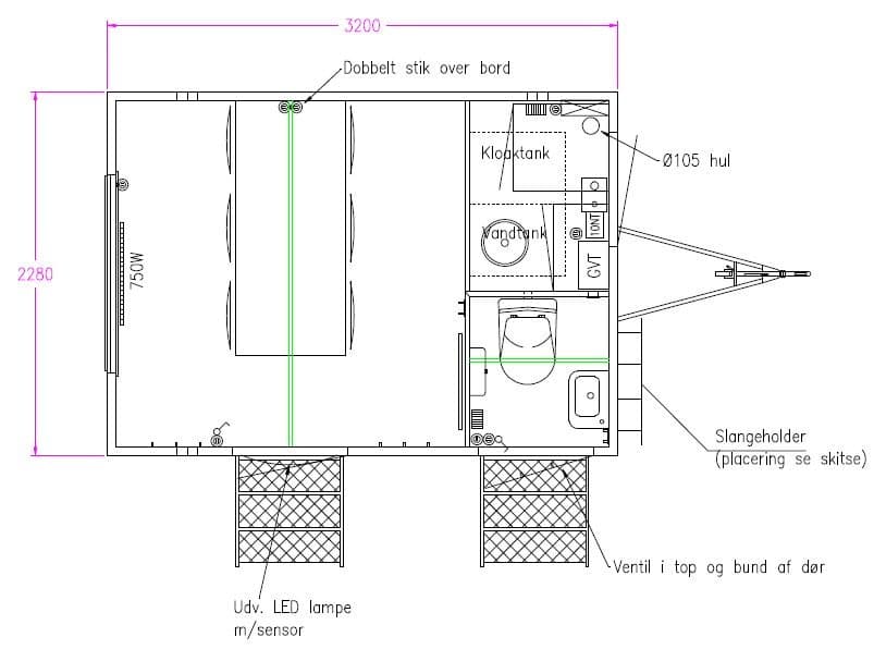
- Mått: H: 295 cm, B: 228 cm, L: 320 cm.
- Elanslutning: 230V 16A CEE-kontakt
- Max. Effektförbrukning: 2690W
- Vattenanslutning: 3/4″ Nito-koppling
- Avloppsanslutning: 1″ Nito-koppling
- Dragkula: 50 mm
- Avloppsvattentank: 220 liter.
- Vattenbehållare: 170 liter.
- Kapacitet: ca 400-450 besök
Utrustning: 1 kylskåp, 1 bord, 6 stolar, kaffebryggare, 1 anslagstavla, 1 väggskåp, elradiatorer, LED-belysning
Inkl.. 25 m. slanguppsättning
En avgift tas ut för påfyllning, rengöring och tömning vid användning av tanken.












