Hyr Manskapsvagnar och Mobila Toalettvagnar för Bygg- och Hantverkssektorn hos Godik.
Din erfarna och pålitliga uthyrningspartner för mobila lösningar för bygg och industri
Oavsett om det gäller manskapsvagnar för bygg, kontorsvagn/containrar eller toalettvagnar, finns vi här för dig och ditt team när och där du behöver det.
Att hyra är inte bara praktiskt – det sparar också plats, tid och framför allt likviditet.
Med Godiks flexibla hyresvillkor får du:
Vi erbjuder ett brett utbud av mobila lösningar för byggarbetsplatser. Vårt sortiment är modernt, funktionellt och välskött – redo att användas!
Account Manager
När det handlar om arbetsplatsens behov är flexibilitet avgörande. Godik erbjuder arbetsbodar i rätt storlek, med rätt utrustning och för den tid du behöver.
Vår mångsidiga portfölj av manskapsvagnar og mobila lösningar gör det enkelt att hitta den arbetsbod som uppfyller dina krav:
Vår flexibla uthyrningsmodell är designad för att ge dig maximal nytta – testa oss och se skillnaden!
Hyr din manskapsvagn idag
Med lång erfarenhet i uthyrningsbranschen förstår vi att varje kund har unika behov.
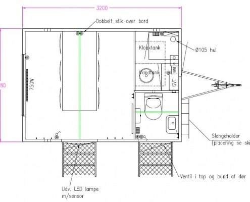
Godik erbjuder ett brett sortiment av kontorsvagnar som är perfekt för byggarbetsplatser med växlande platser. Våra mobila kontorsenheter är flexibla och utrustade med både kontorsytor och toaletter för att säkerställa komfort och hygien. Med dessa enheter kan du skapa ett effektivt och centraliserat kontor på plats som uppfyller dina specifika behov.
Hos Godik hyr du exakt det som passar för din verksamhet:
Med Godiks breda utbud hittar du alltid en lösning som passar perfekt för just ditt projekt.
Hållbarhet är avgörande inom bygg och hantverk. Med Godiks vakuumtoaletter kan du minska din miljöpåverkan och samtidigt förbättra arbetsmiljön.
Fördelar med Godiks vakuumtoaletter:
Testa våra lösningar – vi är övertygade om att du kommer att bli nöjd!
Godik erbjuder ett brett urval av lösningar för bygg-, hantverks- och industribranschen. Från skjul, bostadsvagnar och generatorer till staket och containrar – vi har allt du behöver för att driva ditt projekt framåt.
Med över 30 års erfarenhet har vi byggt upp djup kunskap om våra kunders behov. Vi arbetar nära dig för att hitta skräddarsydda lösningar som möter dina krav och gör din arbetsdag enklare.
Vårt team står redo att hjälpa dig med rådgivning och snabb leverans av den modernaste utrustningen. Oavsett projektets storlek kan vi leverera lösningar som håller hög kvalitet och uppfyller dina förväntningar.
Account Manager